- Agences immobilières Sainte-Sigolène, Yssingeaux
- Vente
- Haute loire
- Ste sigolene
- Terrain à bâtir à vendre
Référence : 704
Calculette
Partager
Terrain à bâtir à vendre
Partager l'offre
Description de l'offre
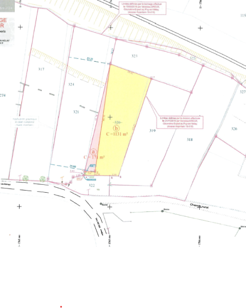
Nouveauté dans vos agence Alti-immo, un terrain à bâtir de 613 m2 est actuellement à vendre sur la commune de Saint-Sigolène dans un nouveau lotissement proche du centre-ville et de ses commodités. Terrain viabilisé et raccordé à tous les réseaux. Pour plus d’informations, contactez dès maintenant vos agences Alti’immo !
Descriptif du bien
- Code postal : 43600
- surface terrain : 613 m²
- Terrain constructible : OUI
- Surface constructible : 613
- Terrain Viabilisé : OUI
- Raccordement eau : OUI
- Raccordement gaz : OUI
- Raccordement électricité : OUI
- Raccordement téléphone : OUI
- Prix de vente : 62 000 €
- Les honoraires d'agence seront intégralement à la charge du vendeur
La ville de Sainte-Sigolène (43600)
Nous Contacter
Afficher le téléphone 0637737500Les informations recueillies sur ce formulaire sont enregistrées dans un fichier informatisé par La Boite Immo agissant comme Sous-traitant du traitement pour la gestion de la clientèle/prospects de l'Agence / du Réseau qui reste Responsable du Traitement de vos Données personnelles.
La base légale du traitement repose sur l'intérêt légitime de l'Agence / du Réseau.
Elles sont conservées jusqu'à demande de suppression et sont destinées à l'Agence / au Réseau.
Conformément à la loi « informatique et libertés », vous disposez des droits d’accès, de rectification, d’effacement, d’opposition, de limitation et de portabilité de vos données. Vous pouvez retirer votre consentement à tout moment en contactant directement l’Agence / Le Réseau.
Consultez le site https://cnil.fr/fr pour plus d’informations sur vos droits.
Si vous estimez, après avoir contacté l'Agence / le Réseau, que vos droits « Informatique et Libertés » ne sont pas respectés, vous pouvez adresser une réclamation à la CNIL.
Nous vous informons de l’existence de la liste d'opposition au démarchage téléphonique « Bloctel », sur laquelle vous pouvez vous inscrire ici : https://www.bloctel.gouv.fr
Dans le cadre de la protection des Données personnelles, nous vous invitons à ne pas inscrire de Données sensibles dans le champ de saisie libre.
Ce site est protégé par reCAPTCHA, les Politiques de Confidentialité et les Conditions d'Utilisation de Google s'appliquent.
